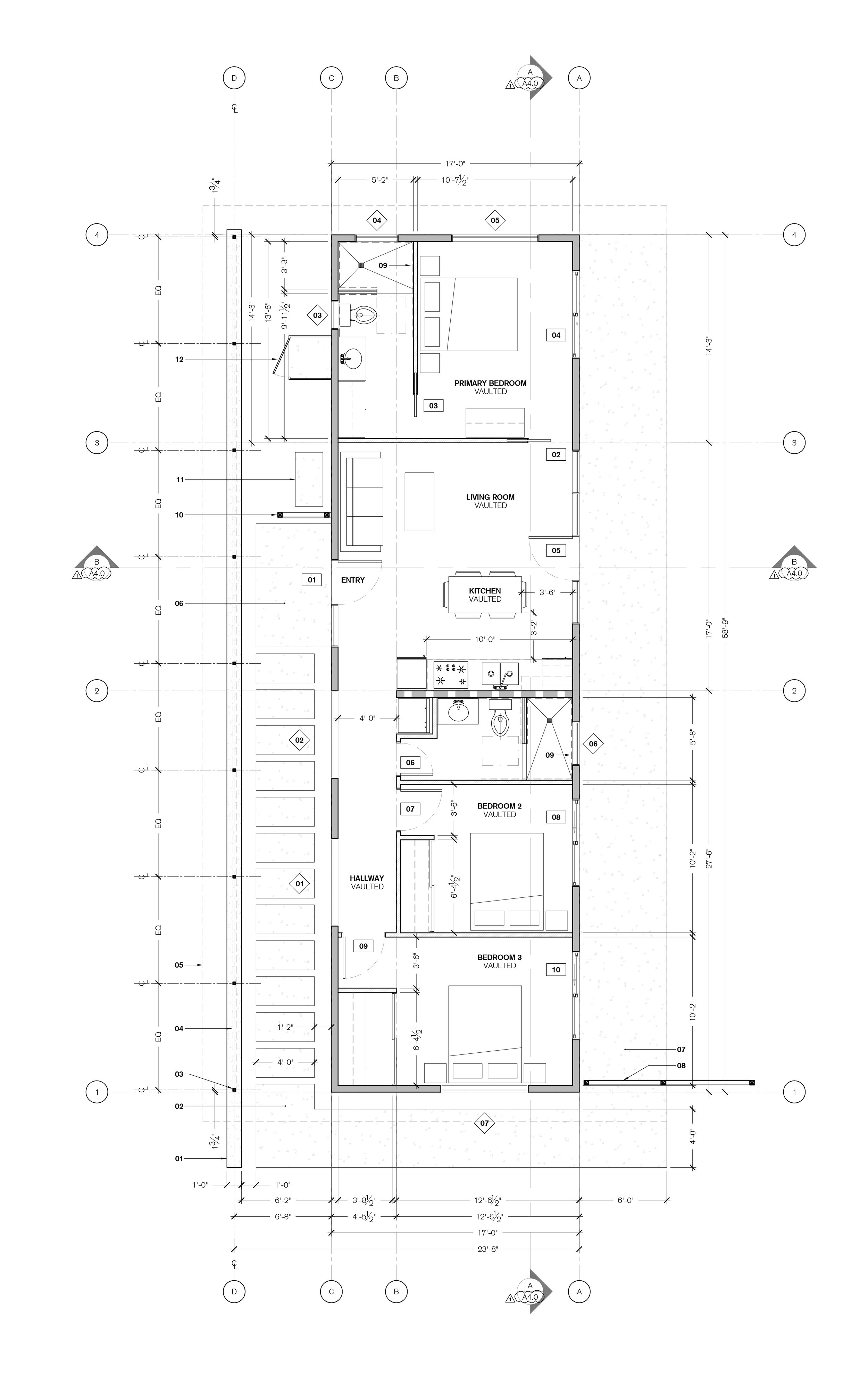
San Luis Obispo Passive ADU

Contacted by the client after reading about Cairn in the local newspaper, we were asked to design and build a typical, larger, fossil-fuel-free Passive House to this smaller, 1,000 SF ADU design-build project in San Luis Obispo. An avid surfer, outdoor enthusiast, and fiscally-responsible homeowner, the client wanted a home that would require zero-maintenance and essentially no operational costs over the coming decades in order to confidently pass it on to his children.

Smart design and efficient building strategies resulted in just one interior plumbing wall, airtight construction details, thermally broken windows, natural, healthy insulation materials, heat pumps for water heating and interior conditioning, and a continuous filtered-fresh-air circulation system with heat recovery (HRV).  Currently under construction, this 3-bedroom, 2-bathroom home will serve as a forever home for the client upon retirement and a family home for generations.  

A contemporary fossil-fuel-free home setting a new standard for eco-friendly living.

Explore more of our sustainable homes.

Back to Projects